top of page
297 5TH STREET
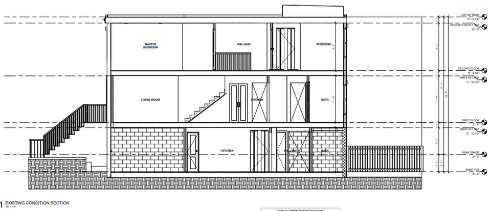
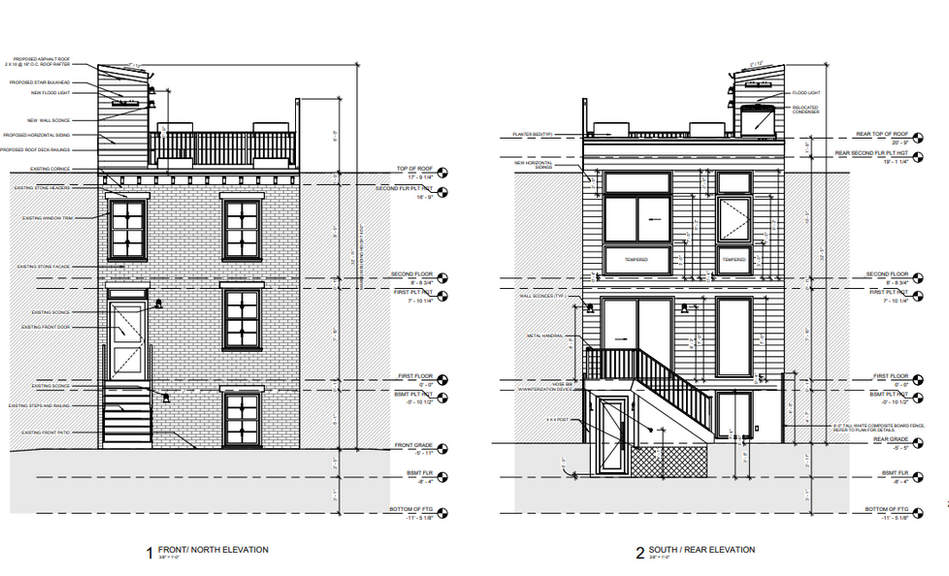
At 297 5th Street, our project aims for a dynamic transformation. The first floor welcomes a formal entry and a rear two-story addition with an expanded kitchen. The basement transforms into a well-lit dining and living area, while the second floor offers three bedrooms, a kids' play area, workout space, and storage. The addition includes a new primary bedroom with ensuite and a roof deck for tranquil moments. The backyard may house a hydraulic car lift for innovative parking solutions, optimizing space and functionality.
Date:
2024
Location:
USA
Type:
Residence (Addition & renovation)

bottom of page









